CO浓度监控系统是由CO浓度监控器主机、CO浓度控制器、CO浓度探测器组成的。今天黄瓜视频黄色就来讲一下CO浓度探测器的安装位置
为了保证CO浓度探测器及时监测到所散的有害气体或爆炸性物质,CO浓度探测器应布置在建筑内可能放散有害物质的发生源附近以及主要的人员活动区域,且应安装维护方便,不影响人员活动。当放散气体或蒸汽密度比空气大时,应设在下部地带;当放散气体或蒸汽比空气小时,应设在上部地带。CO浓度探测器的布置方式:当采用传统的凤管机械进、排风系统时,探测器宜分散设置。当采用诱导式通风系统时,探测器应设在排风口附近。
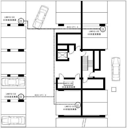
1. CO 浓度探测器平面安装图
黄瓜视频黄色电子科技有限公司专业从事车库CO浓度监控系统的研发生产销售,技术人员为您提供免费技术咨询,咨询热线:400-812-0910