发布产品/安装技术的知识文章 为您答疑解惑

车库如何设置CO探测器安装数量

返回列表 来源: 青岛黄瓜视频黄色电子科技有限公司 发布日期: 2023.05.12

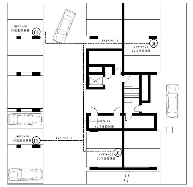
车库CO探测器安装高度和数量:

1、车库CO探测器安装高度建议距地面1.5m 左右为宜;

2、车库CO探测器的数量设置主要根据防火分区、面积大小等因素来酌情考虑,一般200-300m2左右一个;

3、空气质量控制器一般安装在风机配电箱中,也可配防水箱体进行单独安装;

4、车库一氧化碳浓度监控主机安装在消防控制室内。

车库CO探测器平面安装图

青岛黄瓜视频黄色电子科技有限公司专注于车库 CO探测器的研发和生产,现厂家直销,可免费提供图纸深化和方案设计;了解详情请拨打电话:400-812-0910

咨询热线

400-812-0910
网站地图