发布产品/安装技术的知识文章 为您答疑解惑

前室/楼梯间压力(压差)传感器是什么?

返回列表 来源: 黄瓜视频黄色黄瓜视频下载污专业生产厂家 发布日期: 2020.01.25

前室/楼梯间压力(压差)传感器,又叫黄瓜视频污版APP下载,是黄瓜视频下载污 的重要组成部分,通常安装于采用机械加压送风系统的高层建筑的前室(包括消防电梯前室、楼梯间前室、合用前室、三合一前室,以下简称前室)及楼梯间,用于监测前室/楼梯间与走道的 压力差值,是一种专门用于高层建筑正压送风系统的压力(压差)感应装置。压力传感器介绍

黄瓜视频黄色电子前室/楼梯间压力(压差)传感器

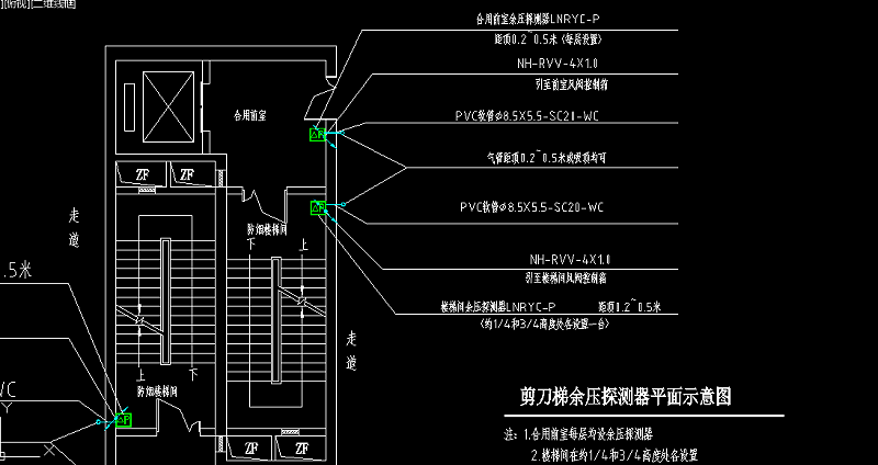
前室/楼梯间压力(压差)传感器在项目的暖通和电气系统图及平面中通常用P 或▲P标示,见下图

前室

余压传感器图纸表示型号

余压传感器图纸介绍

黄瓜视频黄色电子专业从事研发生产前室/楼梯间压力传感器,采用美国进口高精度压力( 压差)传感器元件,一级阻燃 PC材质,一体式智能集成电路,拥有国家外观专利、技术专利、检验报告、校准证书等 10余项专利及证书,满足验收标准,项目领域涵盖酒店、医院、机场、地铁、办公楼、住宅,与百余家开发商、总包单位、消防公司建立了长期合作关系。

黄瓜视频黄色专业技术团队可为您免费提供前室/楼梯间压力(压差)传感器报价、预算统计、图纸深化、设计、预埋、接线、安装、调试等全方位售前售后技术咨询及报价服务。

免费技术咨询电话:400-812-0910.

咨询热线

400-812-0910
网站地图